ИНЖЕНЕРНЫЕ СИСТЕМЫ
Проектируем дома с 2017 года
Спрашивайте,
отвечаем онлайн
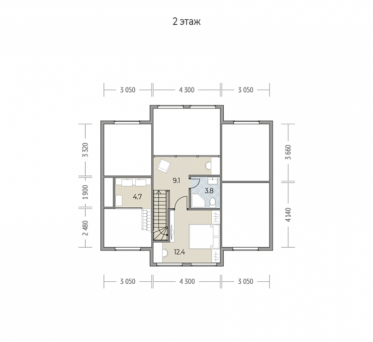
Дом Варяг
Общая площадь: 300 м²
Террасы,балконы: 0 м²
Габариты: 10.85x8.45 м
Наружные стены:
газобетонные блоки 400мм
Фундамент:
монолитная ж/б плита
Перекрытия:
Лаги
Крыша:
Мансардная
Кровля:
Металлочерепица
Цоколь:
нет
Архитектурный стиль:
Американский
Наружная отделка:
Штукатурка
25000 руб.
Архитектурный и конструктивный разделы
300 м²
2 комнаты
1 санузел
1 терраса
2 этажа








Паспорт проекта
Необходим для получения разрешения на строительство и ввода в эксплуатацию.
5000 руб.
Копия проекта (АС)
Дополнительная бумажная сшитая копия документации
3000 руб.
Электронная копия проекта (pdf)
Дополнительная электронная версия проекта в формате pdf
5000 руб.
Посадка дома и других строений на участок
Документ, который определяет расположение всех построек на вашем участке с учетом его особенностей.
Стоимость указана для участков до 10 соток
8000 руб.
Адаптация фундамента
Адаптируем фундамент под особенности грунтов вашего участка и климатические условия вашего региона
18000 руб.
Разработка плана камина для выбранного проекта
Комплект из двух проектов каминов: углового и прямого
5000 руб.
Вид проекта
Отзеркалить типовой проект
3000 руб.
Услуги
Проектирование системы отопления, водоснабжения и канализации
Монтаж системы отопления, водоснабжения и канализации
Контакты
Пн-Пт 10:00 - 19:00
info@ingproff.ru
м. Бульвар Дмитрия Донского, г. Москва, ул. Щербинская, 48Ас11

ООО "ИНЖПРОФФ"
ИНН 9727078239, КПП 772701001, ОГРН 1247700424487
Вы принимаете условия политики в отношении обработки персональных данных и пользовательского соглашения каждый раз, когда оставляете свои данные в любой форме обратной связи на сайте Инжпрофф.ру
© 2017 — 2025. Инжпрофф.ру